Написать нам в WhatsApp

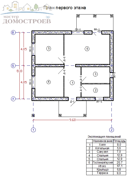
Дом из газобетона 67 м2.

Одноэтажный дом из газобетона – прекрасный выбор для тех, кто хочет быстро и легко построить красивое, надежное, теплое и недорогое жилье.

В зависимости от величины площади, дом может быть любым - например, с 2-3 спальнями для небольшой семьи. А также дополнительными элементами в виде крыльца и террасы.

Вложение