Написать нам в WhatsApp

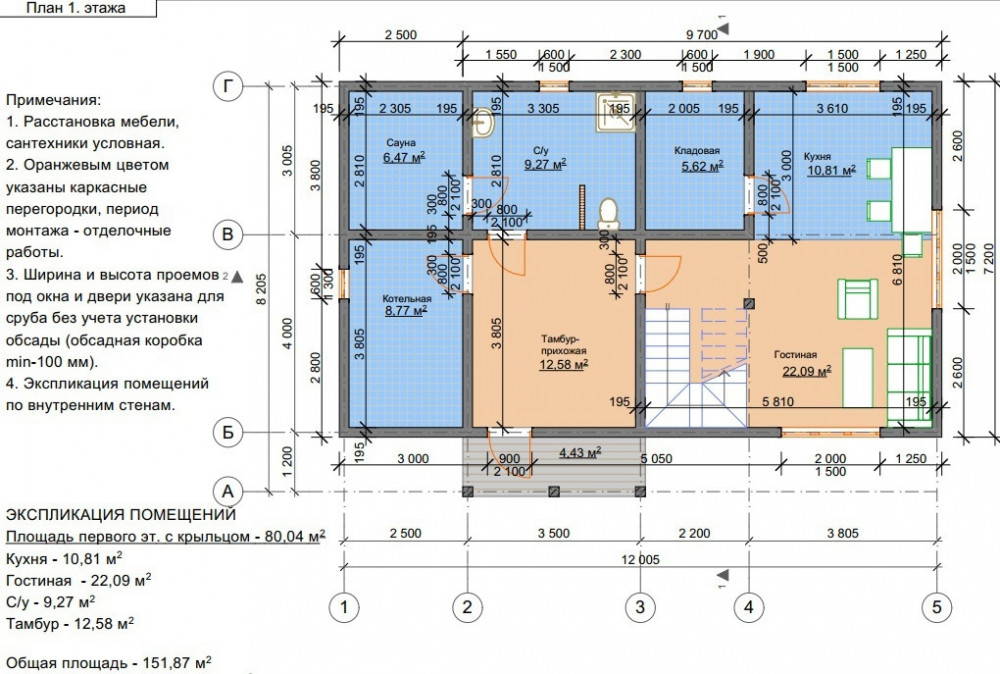
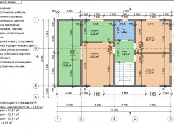
Дом из строганного бруса 152 м2.

Коттеджный поселок Новоселы, Краснокамский р-он

Дом для ценителей стильного комфорта из дерева. 152 м2. для счастливой загородной жизни.