Написать нам в WhatsApp

Дом из газобетона 112 м2.

Материал
газобетон 400 мм.
Площадь
112 м2.
Кол-во этажей
2
Кол-во комнат
4

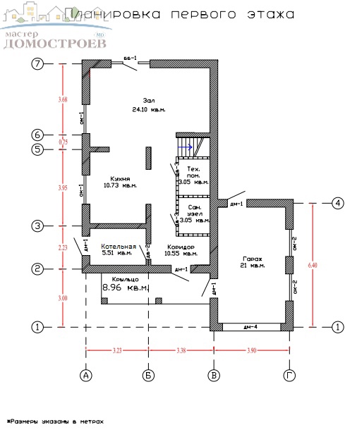
Проект дома из газобетона с мансардным этажом, гаражом и подвальным помещением. Оптимальный вариант в стильном экстерьере для загородного проживания.
В площадь 112 м2. входят: гостиная, кухня, 3 спальни, 2 сан. узла, котельная, тех. помещение, подвальное помещение. К дому примыкает гараж 21 м2.

Получить консультацию по проектам домов и строительным работам вы можете:
✅по телефону 📞 8-951-939-939-1
✅при личной встрече на вашем участке или в нашем офисе по адресу: г. Пермь, ул. Плеханова, 2а, оф. 1