Написать нам в WhatsApp

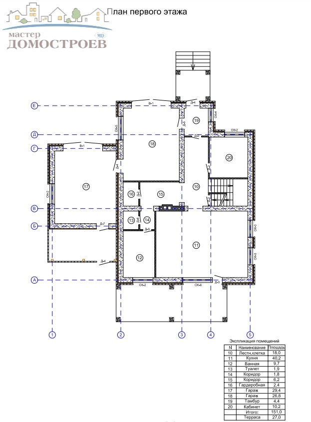
Дом из газобетона 394 м2.

Материал
газобетон 400 мм.
Площадь
394 м2.
Кол-во этажей
3

Представляем проект дома из газобетона большой площадью 394 м2.
В нем совместятся все Ваши пожелания для комфортабельной жизни: от парной в цокольном этаже до просторных спален на 2 этаже.

Получить консультацию по проектам домов и строительным работам вы можете:
✅по телефону 📞 8-951-939-939-1
✅при личной встрече на вашем участке или в нашем офисе по адресу: г. Пермь, ул. Плеханова, 2а, оф. 1