Написать нам в WhatsApp

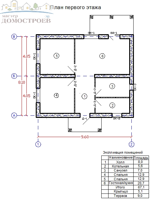
Дом из газобетона 67 м2.

Материал
газобетон 400 мм.
Площадь
67 м2.
Кол-во этажей
1
Кол-во комнат
3

Одноэтажный дом из газобетона – прекрасный выбор для тех, кто хочет быстро построить надежное, теплое и недорогое жилье для себя и семьи.

В зависимости от величины площади, дом может быть любым - например, с 2-3 спальнями для небольшой семьи. А также дополнительными элементами в виде крыльца и террасы.

Получить консультацию по проектам домов и строительным работам вы можете:
✅по телефону 📞 8-951-939-939-1
✅при личной встрече на вашем участке или в нашем офисе по адресу: г. Пермь, ул. Плеханова, 2а, оф. 1

Вложение