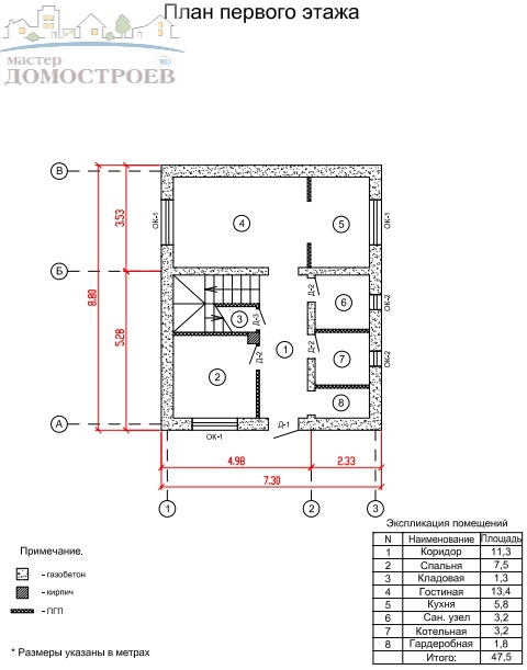
Дом из газобетона 98 м2.
Материал
газобетон 400 мм.
Площадь
98 м2.
Кол-во этажей
2
Кол-во комнат
4
Представляем проект дома из газобетона с мансардным этажом по цене, существенно меньшей, чем цена квартиры в городе
В площадь 98 м2. входят: гостиная, кухня, 3 спальни, 2 сан. узла, котельная, гардероб.
Получить консультацию по проектам домов и строительным работам вы можете:
по телефону
8-951-939-939-1
при личной встрече на вашем участке или в нашем офисе по адресу: г. Пермь, ул. Плеханова, 2а, оф. 1
Вложение